Ujście

Mieszkanie na sprzedaż

Opis nieruchomości

Chcesz sprawdzić swoją zdolność kredytową? Skorzystaj z bezpłatnych usług Naszego eksperta kredytowego. 

NOWA ODSŁONA, NOWA CENA to samo świetne mieszkanie w Ujściu!


Na SPRZEDAŻ mieszkanie dwupoziomowe w Ujściu! Zaledwie 10 minut od Piły, co daje wyjątkowe połączenie wygody miejskiego życia i spokoju zacisznej okolicy domów jednorodzinnych przy ulicy Browarskiej.
Polecam uwadze wyjątkową nieruchomość znajdującą się na I piętrze w budynku wielorodzinnym, w spokojnym otoczeniu, nad rzeką. 
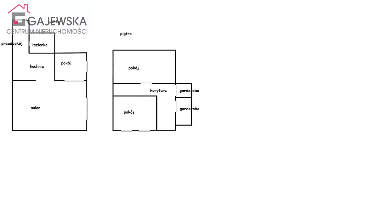
Mieszkanie składa się z przestronnego salonu stanowiącego strefę dzienną i jadalnianą, otwartego na kuchnię, łazienki i korytarza. Salon oddzielony od strefy sypialnej przesuwnymi, nowoczesnymi drzwiami. Na górze dwa niezależne pokoje oraz dwie garderoby.

Powierzchnia całkowita 79,38 m2, użytkowa 53,05 m2.
Wielkości pomieszczeń prezentują się następująco:
- salon 19,10 m2 ,
- kuchnia 3,47 m2, 
- łazienka 2,64 m2,
- sypialnia 4,71 m2,
- pokój 10,63 m2 (po odliczeniu skosów 6,30 m2),
- pokój 7,69 m2 (po odliczeniu skosów 3,60 m2),
- garderoba 3,76 m2,
- garderoba 1,16 m2.

Do mieszkania przynależy duża piwnica o powierzchni aż 13,30 m2.

Nieruchomość nie wymaga wkładu, gotowa do zamieszkania. Na podłogach w pokojach panele, ściany odmalowane, wytapetowane. W korytarzu, kuchni  i łazience kafelki.
Miejsce idealne dla rodziny z dziećmi.
Miesięczny czynsz wynosi 180 zł. Dodatkowe opłaty wg zużycia woda, gaz oraz prąd. Ogrzewanie - kominek na drewno i brykiet drzewny z rozprowadzeniem do wszystkich pomieszczeń. Dodatkowym źródłem ogrzewania są nowoczesne kaloryfery elektryczne.  
Część strychowa zaaranżowana na przestrzeń użytkową w ramach miesięcznej opłaty 45 zł (wliczonej w czynsz), istnieje możliwość wykupienia na własność za zgodą wspólnoty .

Serdecznie zapraszam do kontaktu oraz na prezentację!

Dane opisu nieruchomości podane są przez zamawiającego. Powyższy opis ma charakter informacyjny i nie stanowi oferty w rozumieniu przepisów Kodeksu Cywilnego. Wszelkie prawa zastrzeżone! Opis oraz zdjęcia są własnością biura. Kopiowanie, powielanie, wykorzystywanie zdjęć i opisu bez zgody autora zabronione. Przy zakupie tej nieruchomości należy uwzględnić koszty notarialne oraz wynagrodzenie biura nieruchomości za usługę.

 

Nota prawna

Opis oferty zawarty na stronie internetowej sporządzany jest na podstawie oględzin nieruchomości oraz informacji uzyskanych od właściciela, może podlegać aktualizacji i nie stanowi oferty określonej w art. 66 i następnych K.C.

Szczegóły oferty

Symbol oferty CNG-MS-3115
Powierzchnia 79,38 m²
Powierzchnia użytkowa 53,05 m²
Liczba pokoi 4
Piętro 1
Rodzaj budynku budynek wielorodzinny
Technologia budowlana cegła
Standard
Opłaty w czynszu wywóz śmieci, fundusz remontowy, administracja
Opłaty wg liczników woda, prąd, gaz
Liczba pięter w budynku 1
Piwnica 13,30 m²
Stan lokalu do wprowadzenia
Stan prawny Odrębna własność lokalu
Mies. czynsz admin. 180 PLN
Okna PCV
Instalacje dobre
Balkon brak
Rok budowy 1960
Gaz jest
Woda ciepła - piecyk gazowy
Ogrzewanie elektryczne
Usytuowanie dwustronne
Klucze tak

Pomieszczenia

Powierzchnia pokoi 19,10 m2, 4,71 m2, 6,30 m2, 3,60 m2  m2
Podłogi pokoi panele
Typ kuchni aneks kuchenny
Rodzaj kuchni aneks kuchenny - połączony z salonem
Powierzchnia kuchni 3,47 m2 m2
Podłoga kuchni kafle
Typ łazienki razem z wc
Liczba łazienek 1
Powierzchnia łazienki 2,64 m2 m2
Glazura łazienki glazura
Podłoga łazienki kafle
Wyposażenie łazienki WC, umywalka, lustro, kabina prysznicowa
Liczba przedpokoi 1
Powierzchnia przedpokoi 1,77 m2 m2

Lokalizacja

Kalkulator kredytowy

PLN
%
Wysokość raty

Kalkulator kosztów

PLN
PLN
PLN
PLN
PLN
PLN
%
PLN
Podatek od czynności cywilno-prawnych
Taksa notarialna (opłata notarialna)
VAT od taksy notarialnej (opłaty notarialnej)
Wniosek do WKW
VAT od wniosku do WKW
Prowizja agencji nieruchomości
VAT od prowizji agencji nieruchomości
Wypisy aktu notarialnego - około
RAZEM (cena + opłaty)

Podobne oferty

oferta na wyłączność
mieszkanie na sprzedaż - Ujście

mieszkanie na sprzedaż

Ujście
2 pokoje 38,10 m2 4 986,88 zł/m2
oferta na wyłączność
mieszkanie na sprzedaż - Ujście

mieszkanie na sprzedaż

Ujście
2 pokoje 38,10 m2 4 986,88 zł/m2

Napisz do nas

Proszę wypełnić to pole
Proszę wypełnić to pole
Proszę wypełnić to pole
Proszę wypełnić to pole
Trwa wysyłanie...

Ta strona wykorzystuje pliki cookies w celach statystycznych oraz w celu dostosowania naszych serwisów do indywidualnych potrzeb klientów. Zmiany ustawień dotyczących plików cookie można dokonać w dowolnej chwili modyfikując ustawienia przeglądarki. Korzystanie z tej strony bez zmian ustawień dotyczących cookies oznacza, że będą one zapisane w pamięci urządzenia.

rozumiem